EN EXCLUSIVITÉ - Situé dans une résidence sécurisée en plein coeur de Trévoux au sein d'un parc arboré, au calme et dans un secteur très recherché, ce bel appartement T3 vous offre un cadre de vie idéal.
À proximité des commodités (écoles, commerces, transports), vous bénéficierez du confort d'un environnement paisible tout en étant bien desservi.
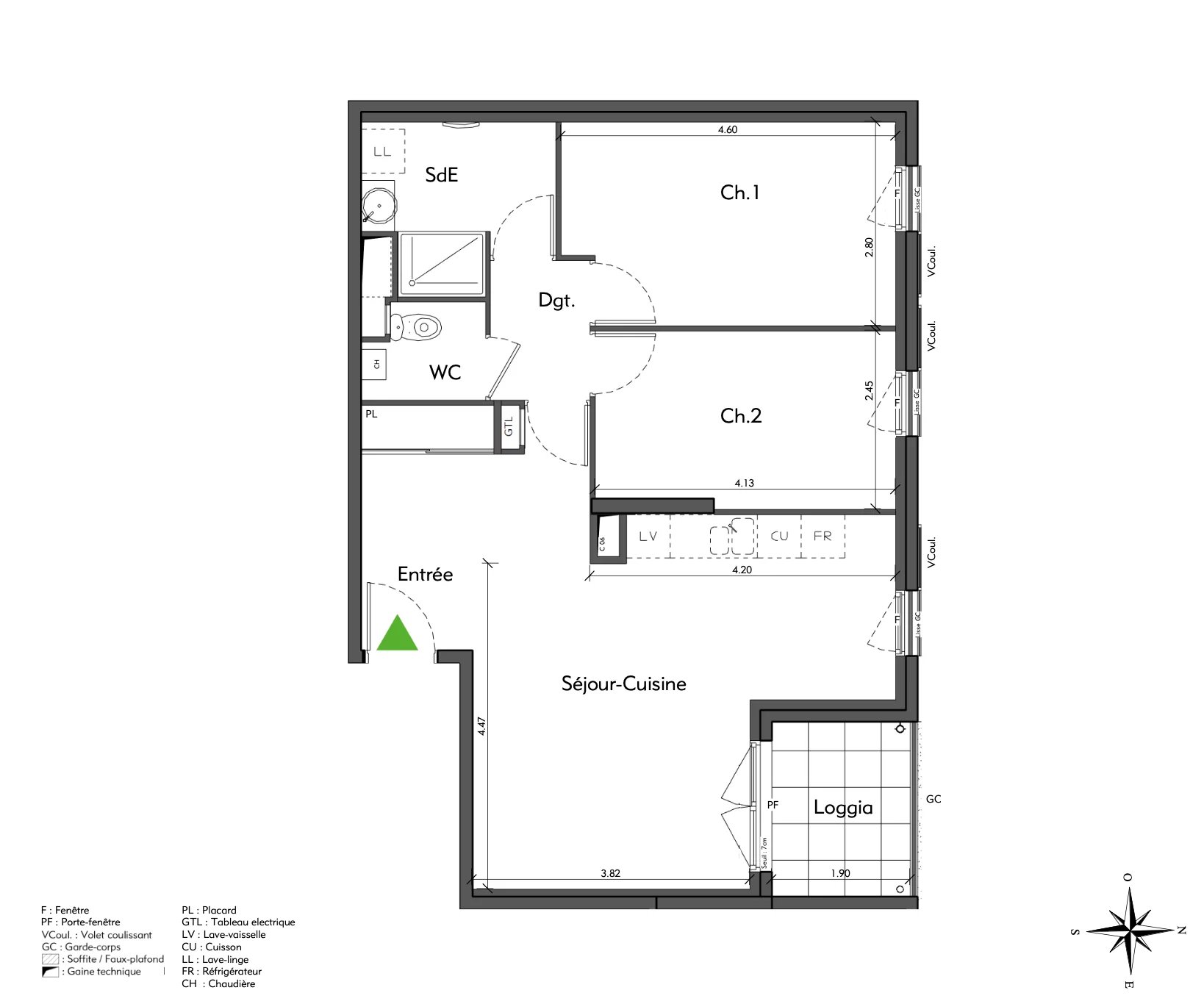
D'une superficie de 70,70m², cet appartement se compose d'une belle pièce à vivre ouverte sur la terrasse et le jardin.
La cuisine entièrement équipé donne également accès à l'extérieur.
Côté nuit, vous retrouverez 2 chambres spécieuses de 12,80 m² et 11,11 m² avec des rangements intégrés.
Vous profiterez également d'un jardin privatif de plus de 25m² ainsi qu'une terrasse de 15m², idéal pour profiter d'un extérieur privatif.
Une cave de 10,25 m² ainsi qu'une place de parking complètent ce bien, assurant un stationnement facile et sécurisé.
Disponible immédiatement, pour plus d'informations ou pour prendre rendez-vous, veuillez contacter CHARBONNET Vincent au O7 48 15 16 45.
DPE : D.
Prix du bien : 239 000 euros FAI
Honoraire à la charge du vendeur